Skip to content
Menu
Search
Search
Contact
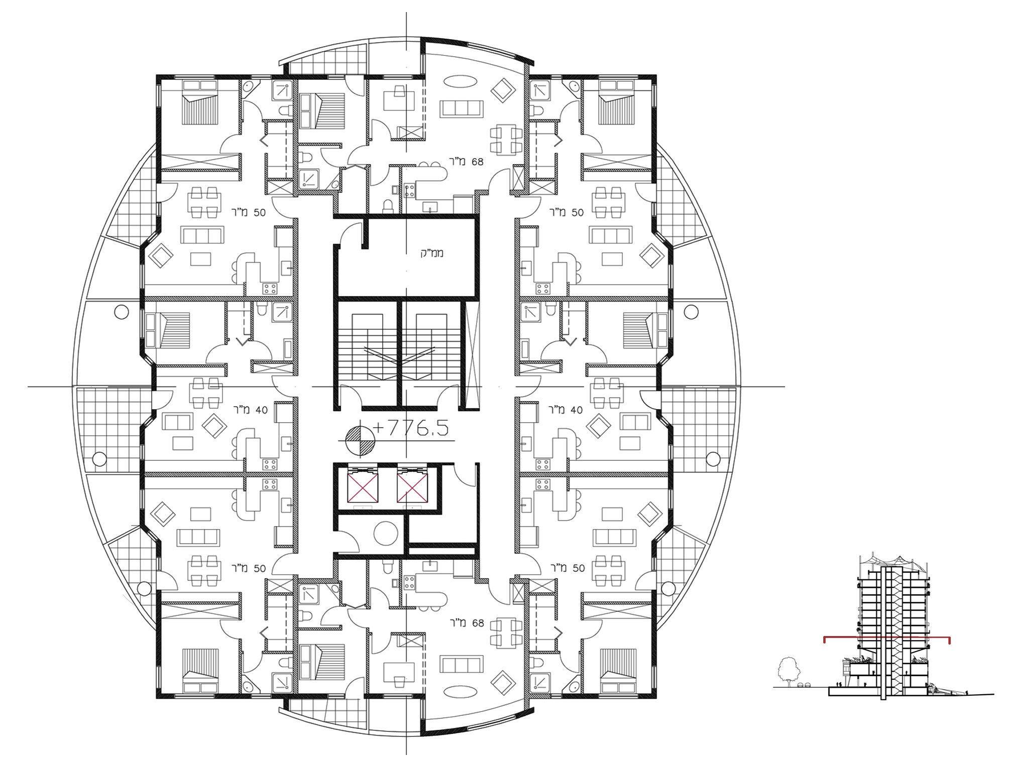
Banit Derech Hevron
Facts and Figures
Previous Project
Related Projects
Beit Yoav Uri 8-10, Tel Aviv
Bandar Abbas, Iran
Projects
About
Archive
Media
Contact
Projects
About
Archive
Media
Contact
Facebook-f
Instagram
Search
Search